• Home
  • Services
    • Tenants
      • Guide to Renting
      • Tenant Fees
      • Report a Problem
    • Landlords
      • Landlords Guide
      • Landlords Fees
      • Our Values
    • Property Management
    • Investors
    • Building & Renovations
    • Students
    • Property Valuation
    • Let Only
  • About
    • Team
    • Area Guide
      • Central Cambridge
      • Mill Road
      • South Cambridge
      • Chesterton and East Cambridge
      • Newnham
      • North Cambridge
      • West Cambridge
    • Office
    • News
    • Testimonials
      • Customer Feedback
  • Contact

Property Search

Property to Rent
Call: +44 (0) 1223 322277
  • Search
  • Book a Valuation
  • Contact
  • Home
  • >
  • Properties to Rent in Cambridge
  • >
  • Union Lane, Cambridge, CB4 1QB
  • 14
  • Virtual Tour
  • Floorplans
  • Brochure
14
  • Description
  • Location
  • Gallery
  • Video
  • Floorplans
  • Brochure
  • Share
  • Create Alert

£3,250 pcm |Tenant Fees

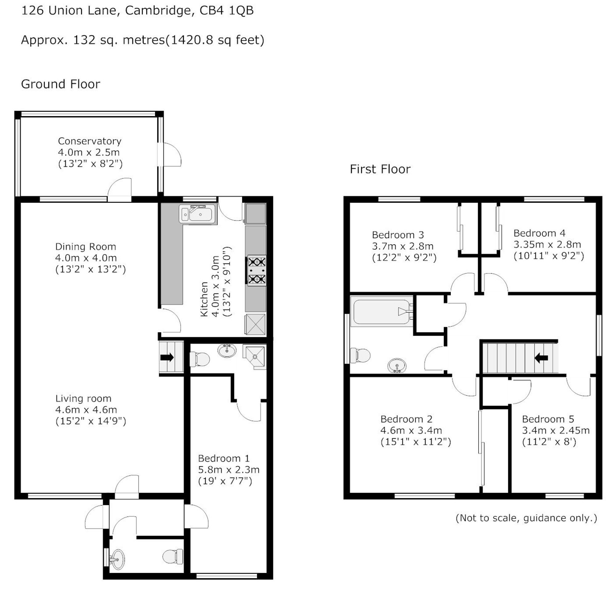
House to rent in Union Lane, Cambridge, CB4 1QB

Available from:10-08-2026 | Fully Furnished
  • 5 Bedrooms
  • 2 Bathrooms
  • 1 Reception

STUDENTS. Available to a group who know each other, NOT as individual rooms. Bills not included. A spacious detached house located to the north east of the city centre with a range of local amenities available nearby on Chesterton High Street, with the city centre and major road links easily accessible. Ground floor accommodation comprises a large lounge/dining room, bedroom with ensuite shower room, conservatory overlooking the rear garden, well equipped kitchen and downstairs WC. The first floor has four bedrooms and a bathroom with bath and shower over. Driveway parking available. Approximately 1.3 miles from ARU. Lawn cutting service included. Available for a fixed period from 10/08/2026 to 12/07/2027 on a joint and several contract. SOLAR PANELS - Tenants will benefit from the reduced amount of electricity they need to draw from the grid thereby reducing their electric bill. The landlord will receive any feed in tariff generated..

Features
  • Council Tax Band E
  • EPC rating B
  • Electric oven & hob
  • Fridge freezer & Dishwasher
  • Washing machine & Tumble dryer
  • Rear garden with garden service included
  • Solar panels
  • 5 Bedrooms
  • 2 Bathrooms
  • 1 Reception

Cambridgeshire is full of delightful villages. Often with a quintessential English lifestyle. Enjoy the countryside with easy access to all Cambridge City has to offer.

View the Area Guide

Download Brochure

    Property Manager

    Are you interested in this property?

    Book a Viewing

     

    +44 (0) 1223 322277

    Share This Property

  • Map

Quickest way to view this property is to complete the Book a Viewing Form

What's the rental value of my property?

For a free valuation fill out the form or call us on +44 (0) 1223 322277 .

Book a Valuation

By clicking Submit, you agree to our Terms & Conditions and Privacy Policies.

Renovation

Optional
Optional

By clicking Submit, you agree to our Terms & Conditions and Privacy Policy.

Student Fees

Capture 22.05

 

NONE HOUSING ACT AGREEMENT

Company application, administration and referencing fee - £420.00 (inc. VAT) this is non returnable.

Similar Properties to rent in Cambridge

Browse to discover an exciting range of our properties to rent in Cambridge.

Brunswick Terrace, Cambridge, CB5 8DG

£3,250 pcm

£ $ €
Let Agreed

Stourbridge Grove, Cambridge, CB1 3HZ

£3,375 pcm

£ $ €

Staffordshire Street, Cambridge, CB1 2NB

£2,490 pcm

£ $ €

Streetly End, West Wickham, Cambridge, CB21 4RP

£2,999 pcm

£ $ €

Moyne Close, Cambridge, CB4 2TA

£2,750 pcm

£ $ €
Let Agreed

Evergreens, Cambridge, CB4 1UP

£2,500 pcm

£ $ €
view more properties
  • Rightmove
  • Arla
  • prs
  • otm

Contact Us

We'd love to hear from you. Call us on +44 (0) 1223 322277 or click the button below to get in touch.

Contact Us Book a Valuation
  • Services
  • Area Guides
  • Tenants
  • About
  • Landlords
  • Testimonials
  • Investors
  • News
  • Students
  • Contact
  • Building & Renovations
  • Careers
  • Property Management
  • Landlord Valuation
  • Terms & Conditions
  • Client Money Protection
  • Complaints Procedure
  • Requirements
  • Privacy & Cookies
  • Sitemap
  • Update Cookies Preferences
  • 2026 © Cambridge Property Lettings
  • Site by Starberry
Book a viewing Request Valuation
Top