• Home
  • Services
    • Tenants
      • Guide to Renting
      • Tenant Fees
      • Report a Problem
    • Landlords
      • Landlords Guide
      • Landlords Fees
      • Our Values
    • Property Management
    • Investors
    • Building & Renovations
    • Students
    • Property Valuation
    • Let Only
  • About
    • Team
    • Area Guide
      • Central Cambridge
      • Mill Road
      • South Cambridge
      • Chesterton and East Cambridge
      • Newnham
      • North Cambridge
      • West Cambridge
    • Office
    • News
    • Testimonials
      • Customer Feedback
  • Contact

Property Search

Property to Rent
Call: +44 (0) 1223 322277
  • Search
  • Book a Valuation
  • Contact
  • Home
  • >
  • Properties to Rent in Cambridge
  • >
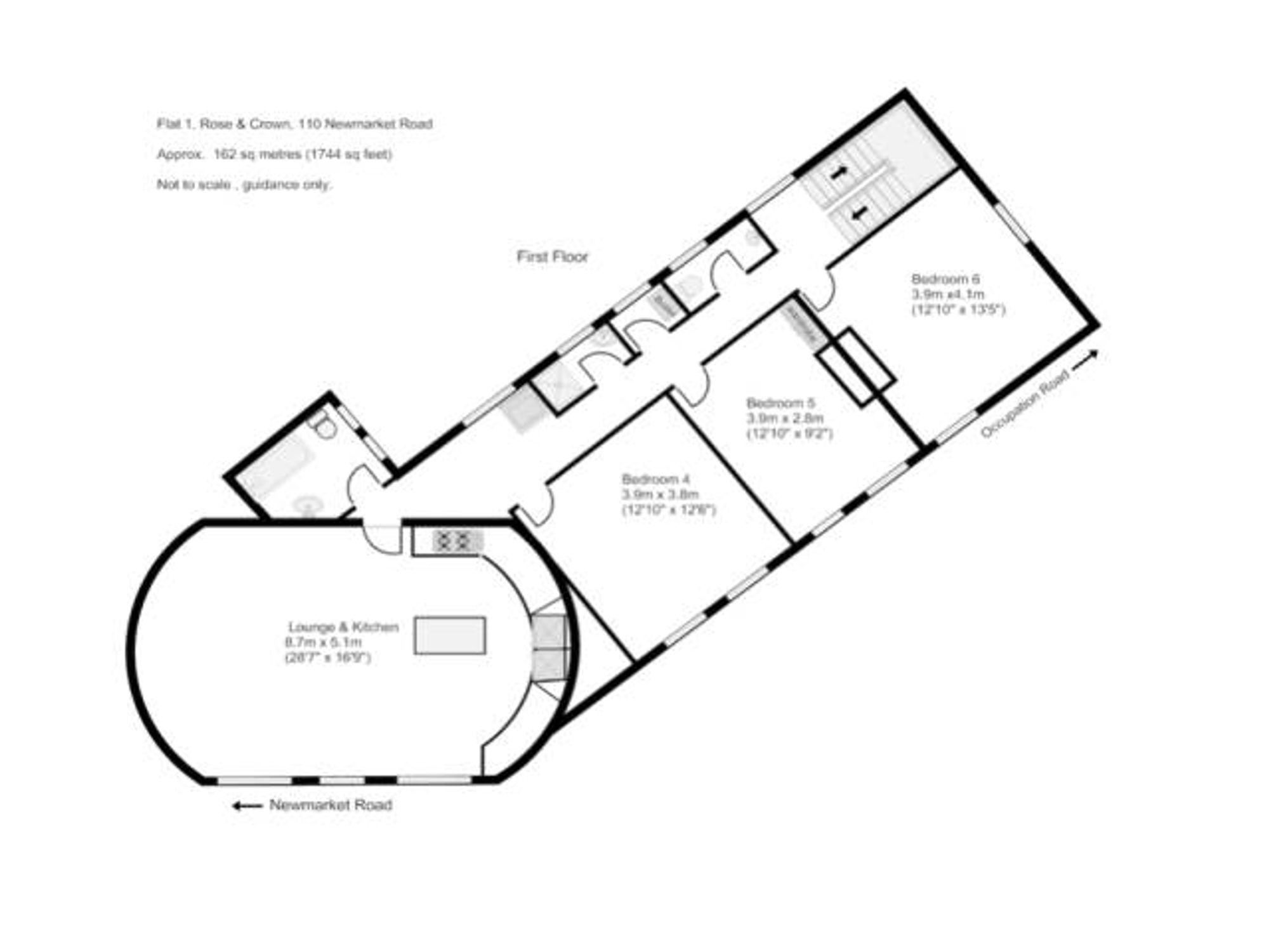
  • Newmarket Road, Rose & Crown House, Cambridge, CB5 8HE
  • 8
  • Virtual Tour
  • Floorplans
  • Brochure
8
  • Description
  • Location
  • Gallery
  • Video
  • Floorplans
  • Brochure
  • Share
  • Create Alert

£3,800 pcm |Tenant Fees

House share to rent in Newmarket Road, Rose & Crown House, Cambridge, CB5 8HE

Available from:21-08-2026 | Fully Furnished
  • 6 Bedrooms
  • 3 Bathrooms
  • 1 Reception

STUDENTS ONLY. Available to a group of students who know each other, NOT as individual rooms. This exceptional six bedroom apartment is arranged over two floors and ideally placed for ARU. Accommodation includes, 6 double bedrooms (one with en suite), bathroom with shower, separate shower room and WC. Stunning vaulted living room and kitchen. External cycle store. Available for a fixed period from 20/07/2026 - 09/08/2027 on a joint and several contract. EPC Rating D.

Features
  • Council Tax Band D
  • EPC Rating D
  • 2 Fridge Freezers
  • Electric oven & hob
  • Dishwasher
  • Washing machine
  • Tumble dryer
  • 6 Bedrooms
  • 3 Bathrooms
  • 1 Reception Room

Chesterton & East Cambridge Area Guide

Are you thinking of renting a property in Cambridge? Then Chesterton and East Cambridge might be the place for you. Situated to the north...

View the Area Guide

Download Brochure

    Property Manager

    Are you interested in this property?

    Book a Viewing

     

    +44 (0) 1223 322277

    Share This Property

  • Map

Quickest way to view this property is to complete the Book a Viewing Form

What's the rental value of my property?

For a free valuation fill out the form or call us on +44 (0) 1223 322277 .

Book a Valuation

By clicking Submit, you agree to our Terms & Conditions and Privacy Policies.

Renovation

Optional
Optional

By clicking Submit, you agree to our Terms & Conditions and Privacy Policy.

Student Fees

Capture 22.05

 

NONE HOUSING ACT AGREEMENT

Company application, administration and referencing fee - £420.00 (inc. VAT) this is non returnable.

Similar Properties to rent in Cambridge

Browse to discover an exciting range of our properties to rent in Cambridge.

Let Agreed

Tenison Road, Cambridge, CB1 2DW

£3,000 pcm

£ $ €

Streetly End, West Wickham, Cambridge, CB21 4RP

£2,999 pcm

£ $ €

Thoday Street, Cambridge, CB1 3AX

£2,950 pcm

£ $ €
Let Agreed

Union Lane, Cambridge, CB4 1QB

£3,250 pcm

£ $ €
view more properties
  • Rightmove
  • Arla
  • prs
  • otm

Contact Us

We'd love to hear from you. Call us on +44 (0) 1223 322277 or click the button below to get in touch.

Contact Us Book a Valuation
  • Services
  • Area Guides
  • Tenants
  • About
  • Landlords
  • Testimonials
  • Investors
  • News
  • Students
  • Contact
  • Building & Renovations
  • Careers
  • Property Management
  • Landlord Valuation
  • Terms & Conditions
  • Client Money Protection
  • Complaints Procedure
  • Requirements
  • Privacy & Cookies
  • Sitemap
  • Update Cookies Preferences
  • 2026 © Cambridge Property Lettings
  • Site by Starberry
Book a viewing Request Valuation
Top